Concept Structure proiecteaza structura statiilor Paris, Bruxelles si Otopeni din cadrul Magistralei 6 (M6) a metroului din Bucuresti, un proiect strategic ce leaga Bucurestiul de Aeroportul Otopeni. Cu solutii inovatoare, expertiza locala si colaborari internationale, compania contribuie decisiv la dezvoltarea infrastructurii de transport urban.Magistrala 6 reprezinta viziunea de pe termen lung a autoritatilor si a comunitatii ingineresti romanesti pentru crearea unei legaturi rapide si eficiente intre Gara de Nord si Aeroportul International Henri Coanda. Sectiunea de Nord, Lotul 1.2, care se intinde pe 7,6 km, include statiile Washington, Paris, Bruxelles, Otopeni, Ion I.C. Bratianu si Aeroport Otopeni. Pentru prima data in istoria retelei de metrou bucurestene, infrastructura traverseaza limita administrativa a Capitalei, patrunzand in judetul Ilfov si asigurand un flux continuu de pasageri fara niciun transfer intermediar.
Demersurile pentru Magistrala 6 au inceput inca din anii 2000, insa maturizarea proiectului s-a realizat abia dupa 2016, cand Guvernul Romaniei a aprobat indicatorii tehnico-economici pentru primii 14 km si 12 statii. Urmatorul pas major a fost obtinerea acordului de mediu in 2017, urmata de exproprieri si dechestrarea terenurilor in zonele afectate de traseu. Dupa o perioada de stagnare, in 2021 a fost demarata din nou Sectiunea Nord, iar licitatia pentru proiectare si executie a fost finalizata in mai 2023, cand contractul a fost atribuit asocierii Gülermak Ağir Sanayi Insaat ve Taahhüt AS - Somet SA.

Provocari tehnice si solutii inovatoare in proiectarea statiilor
In contextul Magistralei 6, Concept Structure actioneaza ca specialist local in inginerie structurala, aducand expertiza echipei sale in proiectarea structurilor de rezistenta pentru statiile de metrou. Colaborarea cu partenerii nationali (Metrans) si internationali (3TI Progetti, TPF Ingenieria si antreprenorii Gülermak - Somet) este un exemplu elocvent de cooperare multidisciplinara, in care know-how-ul local se imbina cu experienta globala.
Concret, Concept Structure s-a ocupat de modelarea structurala, calculul si detalierea elementelor importante pentru statiile Paris, Bruxelles si Otopeni, tinand cont de cerintele seismice ridicate ale zonei Bucuresti, de interactiunea cu tunelurile realizate cu TBM (Tunnel Boring Machine) si de constrangerile impuse de infrastructura urbana de la suprafata. De asemenea, firma a avut responsabilitatea integrarii aspectelor geotehnice in proiectare, dat fiind ca realizarea in conditii de siguranta a statiilor sub nivelul apei freatice necesita analize complexe de stabilitate a terenului, de retentie a apei si de control al tasarilor. Prin rolul sau, Concept Structure contribuie direct la asigurarea stabilitatii si robustetii structurilor, ceea ce este fundamental pentru siguranta in exploatare a viitorului metrou.

Proiectarea si construirea statiilor de metrou Paris, Bruxelles si Otopeni implica o serie de provocari logistice si tehnice notabile. In primul rand, amplasamentul lor de-a lungul DN1 (soseaua care leaga Capitala de Aeroportul Otopeni) impune lucrari de deviere a traficului si reconfigurarea retelelor de utilitati din zona. Executarea statiilor presupune exproprierea unor terenuri private pentru a obtine culoarul de lucru necesar - un proces complex, care a necesitat hotarari de guvern si alocari bugetare suplimentare in 2022 si 2023. De asemenea, obtinerea autorizatiei de construire pentru aceste obiective a impus obtinerea unui numar impresionant de avize si acorduri: de la autoritati de mediu, ape (datorita lucrarilor sub nivelul panzei freatice), furnizori de utilitati (apa, canal, electricitate, gaze), la avize de trafic si siguranta feroviara. Integrarea acestor conditii in proiectul tehnic a necesitat efort coordonat intre proiectanti si autoritati, dar efortul a fost incununat de succes - Autorizatia de Construire pentru Lotul 1.2 a fost obtinuta in august 2024, marcand un pas decisiv inainte.

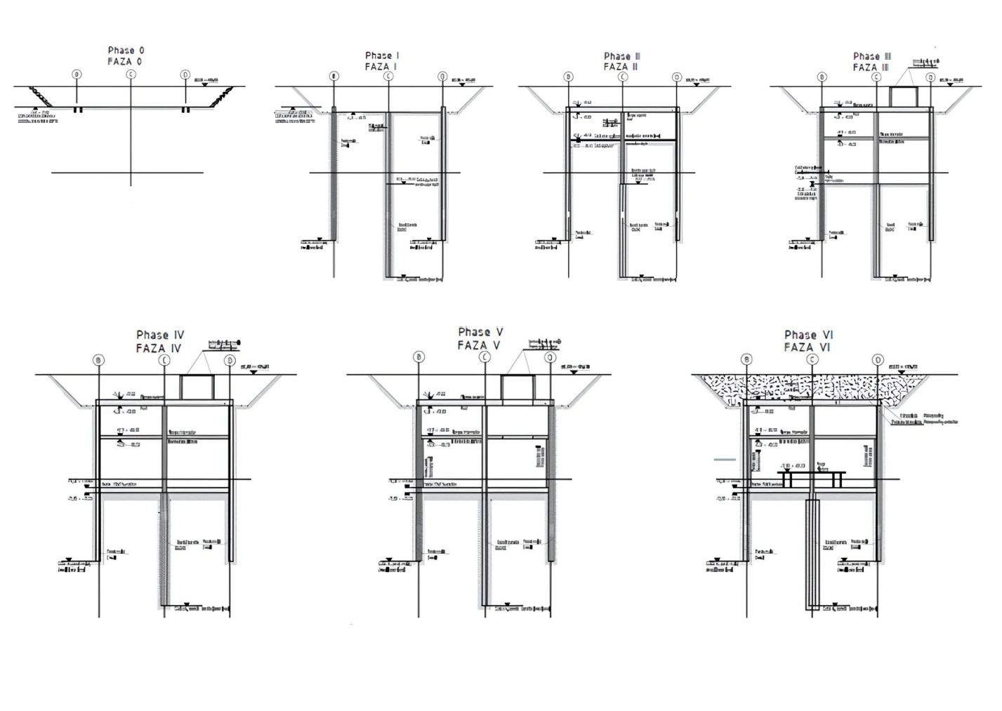
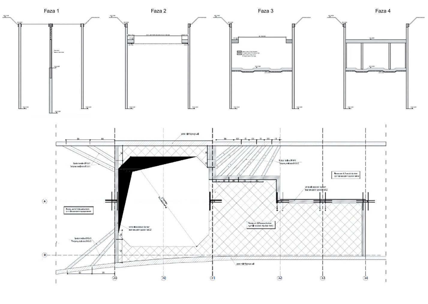
Modelare 3D, prefabricate subterane si executie top-down
In faza de proiectare, s-au utilizat instrumente moderne de simulare si modelare 3D/BIM, facilitand coordonarea cu celelalte specialitati (arhitectura, instalatii, sisteme de transport). Acest mod de lucru reduce erorile de executie si permite optimizarea materialelor - un aspect esential avand in vedere volumul mare de beton armat necesar (zeci de mii de metri cubi) si armaturi din otel (cantarind mii de tone) pentru fiecare statie.
In proiectarea statiilor Paris, Bruxelles si Otopeni, inginerii de structura de la Concept Structure au implementat o solutie tehnica inovatoare pentru aceasta metoda: utilizarea stalpilor prefabricati din beton armat instalati in subteran odata cu executia baretelor. Practic, in locul stalpilor metalici provizorii (adesea folositi ca sprijiniri temporare la metoda top-down), s-au introdus stalpi prefabricati de beton in carcasa armaturii beretelor, care au fost ulterior betonati monolit integrat. Acesti stalpi prefabricati devin parte a structurii finale si servesc la sprijinirea imediata a planseelor pe parcursul constructiei, eliminand necesitatea unor elemente metalice temporare si accelerand procesul de executie. Betonul utilizat pentru elementele monolite este de clasa C30/37, iar pentru elementele prefabricate s-a folosit beton de clasa superioara C40/50, asigurand atat rezistenta necesara, cat si durabilitatea in mediul subteran. Aceasta abordare optimizeaza santierul din punct de vedere structural si economic, reducand timpii de asteptare si marind siguranta in executie (mai putine faze de substituire a sprijinirilor provizorii).
Din punct de vedere al constructiei, mediul urban dens si necesitatea de a mentine circulatia pe DN1 impun un ritm de executie atent planificat. Tehnologia top-down aleasa reduce durata si extinderea santierelor la suprafata, insa necesita echipamente specializate (utilaje de foraj pentru pereti mulati si piloti, macarale de mare tonaj pentru montarea prefabricatelor) si personal calificat. Executia tunelurilor care leaga statiile se va realiza cu ajutorul a doua TBM-uri (Tunelling Boring Machines) pornite din capetele tronsonului (dinspre statia Tokyo si dinspre statia Aeroport Otopeni), urmand sa se intalneasca la mijloc - strategia care a stat si la baza impartirii proiectului in doua loturi cu punct comun la statia Tokyo. Aceasta abordare permite inaintarea in paralel a lucrarilor, scurtand termenele. Deja pe Sectiunea Sud (Lot 1.1), cele doua TBM-uri, denumite "Sfanta Maria" si "Sfanta Ana" au excavat primele sute de metri de tunel in 2024-2025, iar o mobilizare similara este asteptata si pe Sectiunea Nord odata cu finalizarea statiilor de lansare.

Colaborare internationala si leadership local
In prezent (la jumatatea anului 2025), lucrarile de constructie la statiile Paris, Bruxelles si Otopeni nu au inceput inca efectiv pe teren, asteptandu-se finalizarea tuturor aprobarilor tehnice si emiterea ordinului de incepere. Imediat ce documentatiile statiilor Paris si Bruxelles primesc unda verde, se poate trece la executia efectiva in forta pe toate fronturile Sectiunii Nord.
Prin implicarea in Magistrala 6, Concept Structure isi confirma pozitia de lider in ingineria structurala din Romania. Cu o cifra de afaceri de aproximativ 20 de milioane de euro in 2024 si o echipa de peste 60 de specialisti, compania isi mentine strategia de inovare continua, investitii in tehnologiile BIM si formare profesionala pentru ingineri tineri. Colaborarea cu parteneri precum 3TI Progetti, TPF Ingenieria si antreprenori de anvergura internationala reflecta orientarea lor catre proiecte la cele mai inalte standarde globale.
Solutiile de inginerie structurala adoptate aici - de la metoda de constructie top-down cu inovatiile sale, la coordonarea complexa multi-disciplinara - vor constitui repere valoroase pentru viitoare proiecte de infrastructura subterana in Romania. Implicarea firmei Concept Structure, alaturi de parteneri internationali, demonstreaza capacitatea specialistilor locali de a livra proiecte la standarde mondiale, contribuind direct la modernizarea transportului public si, implicit, la cresterea calitatii vietii in societate. Magistrala 6. 1 Mai - Otopeni nu este doar o lucrare de inginerie, ci si un exemplu de viziune strategica in care profesia de inginer structurist joaca un rol fundamental, asigurand scheletul de rezistenta al unui proiect ce va deservi generatiile urmatoare.




